Venta - Apartamento a estrenar - 2 Dormitorios - Punta del Este

Punta del Este, Punta del Este

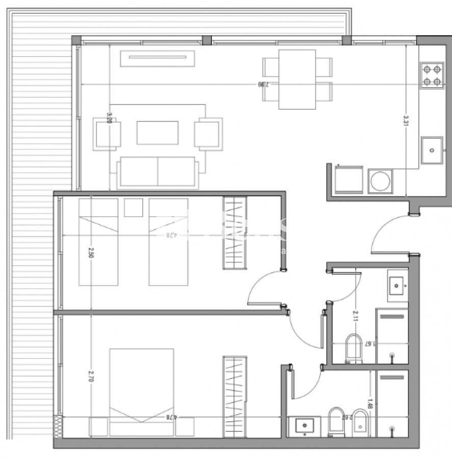
  • Dormitorios 2 Dormitorios
  • Baños 2 Baños
  • Superficie 88 m2
  • Garage Opcional

U$S 191.500

Descripción

Venta - Apartamento a estrenar - 2 Dormitorios - Punta del Este
Una Combinación Perfecta
Mar y distención , en un entorno de negocios, shopping y toda la oferta cultural y gastronómica que ofrece Punta del Este.
El edificio esta ubicado en un punto estratégico :
A 100 metros del mar y 200 del World Trade Center a pasos del Puerto del Yacht Club y a 20 minutos del Aeropuerto

SUDESTE combina la practicidad de un edificio urbano con el estilo distendido de un balneario.
El edificio tienen una impronta contemporánea , con composiciones de materiales rústicos y sofisticados.
El hormigón visto interactúa con los delicados revestimientos de madera y carpinterías de altas prestaciones .
Son 36 apartamentos con 38 cocheras cubiertas .
Los amenities incluyen piscina cubierta , gimnasio , spa , barbacoas , rooftop con livings y solariums con vistas panorámicos a la cuidad y al mar.

Fecha de entrega: Julio 2025
Gastos de Ocupación: 5%
Gastos Comunes estimados :$8500



Detalles de la Propiedad

  • BarrioPunta del Este
  • VistaLateral
  • Distancia al Mar100
  • Total m288
  • Propios m288
  • Dormitorios2
  • Baños2
  • Suites1
  • CocinaCompleta
  • Living ComedorSi
  • GarageOpcional
  • PiscinaSi
  • SaunaSi
  • GimnasioSi
  • VigilanciaSi

Equipamiento

  • Anafe
  • Placard en cocina
  • Placard en dormitorio
  • Termotanque

Gastos y Impuestos

  • Gastos Comunes: $ 8.500 (Mensual)